시민과 함께하는 수준높은 공연·전시장 순천문화예술회관
Home > 회관 시설안내 > 소극장 > 무대평면도

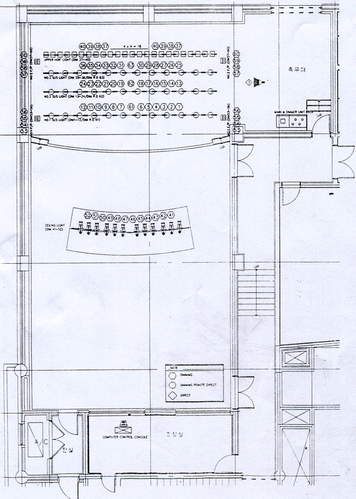
무대평면도

QR CODE

오른쪽 QR Code 이미지를 스마트폰에 인식시키면 자동으로 이 페이지로 연결됩니다.
이 QR Code는 현재 페이지 의 정보를 담고 있습니다.

현재페이지로 연결되는 QR코드

현재페이지에서 제공되는 서비스에 대하여 만족하십니까?

만족도결과보기

공공누리의 제4유형

[출처표시-비상업적-변경금지]
출처표시/비상업적 이용만 가능/변형 등 2차적 저작물 작성 금지

콘텐츠 담당부서 :
문화예술회관
전화 :/
061-749-8619
콘텐츠 최종 수정일 : /
2018-09-04